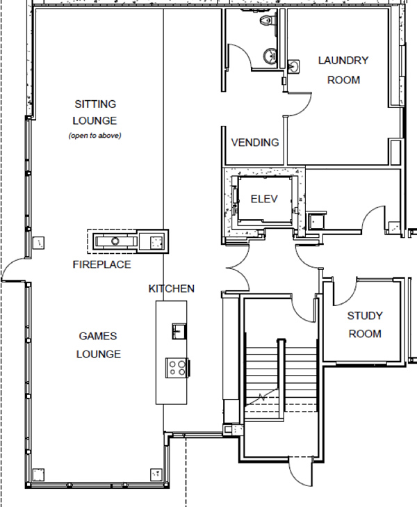
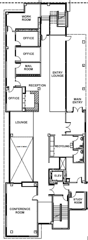
Residence Hall Layout